Skip To Content

266 Blairs Ferry Rd Ne , #200

Cedar Rapids, IA 52402
  • $0
  • STATUS: Active
  • ON SITE: 22 Days
  • MLS #: 2602049
UPDATED: 38 min ago
$0
  • 0
    BEDS
  • 2.02
    ACRES
  • 0
    BATHS
  • 0
    1/2 BATHS
  • 15,803
    SQFT
  • $0
    $/SQFT
Neighborhood:
Type:
Commercial-Lease
Built:
1986
County:
Area:

School Ratings & Info

Description

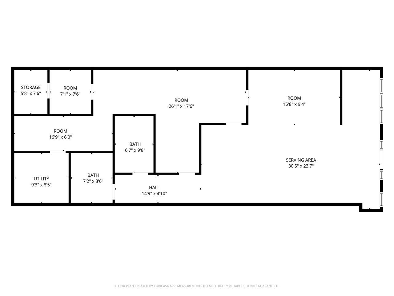
Retail Space for Lease – High-Traffic Blairs Ferry Road. Excellent opportunity for retail or service-based business in a high-visibility strip center located on heavily traveled Blairs Ferry Road. Unit #200 features a spacious open retail area, private office, restroom, and great storage space. A detailed floor plan is available in the MLS documents for review. This unit space is situated facing Blairs Ferry with great light from the large front windows with convenient parking just steps from the entrance. The well-established strip center is anchored by Dollar General and enjoys outstanding exposure with over 21,000 vehicles passing daily. The property offers ample on-site parking, strong Blairs Ferry Road frontage, and excellent visibility. It is ideally positioned near major employers including Collins Aerospace, as well as Collins Road, Lindale Mall, and other area amenities. This prime location sits in the heart of a busy and thriving commercial corridor in Cedar Rapids. Perfect for a variety of retail, office, or service uses.

© 2026 Cedar Rapids Area Association of REALTORS® Multiple Listing Service, Inc. All rights reserved. IDX information is provided exclusively for consumers' personal, non-commercial use and may not be used for any purpose other than to identify prospective properties consumers may be interested in purchasing. Information is deemed reliable but is not guaranteed accurate by the MLS or Rosekrans Stines Team | RE/MAX Concepts. Data last updated: 2026-04-18T14:43:22.39.
www.realtybrotherscr.com/homes/174479688
Print Image

266 Blairs Ferry Rd Ne , #200 Cedar Rapids, IA 52402

  • Price: $0
  • Status: Active
  • On Site: 22 Days
  • Updated: 38 min ago
  • MLS #: 2602049
0
Beds
0
Baths
0
½ Baths
2.02
Acres
15,803
SQFT
$0
$/SQFT
1986
Built
Neighborhood:
NE Quadrant
County:
Linn
Area:
NE Quadrant
Property Description
Retail Space for Lease – High-Traffic Blairs Ferry Road. Excellent opportunity for retail or service-based business in a high-visibility strip center located on heavily traveled Blairs Ferry Road. Unit #200 features a spacious open retail area, private office, restroom, and great storage space. A detailed floor plan is available in the MLS documents for review. This unit space is situated facing Blairs Ferry with great light from the large front windows with convenient parking just steps from the entrance. The well-established strip center is anchored by Dollar General and enjoys outstanding exposure with over 21,000 vehicles passing daily. The property offers ample on-site parking, strong Blairs Ferry Road frontage, and excellent visibility. It is ideally positioned near major employers including Collins Aerospace, as well as Collins Road, Lindale Mall, and other area amenities. This prime location sits in the heart of a busy and thriving commercial corridor in Cedar Rapids. Perfect for a variety of retail, office, or service uses.
Exterior Features

Construction Materials Frame Steel Parking Features Off Street Roof Asphalt Shingle

Interior Features

Basement YN No Cooling Central Air Cooling YN Yes Flooring Concrete Heating Gas Heating YN Yes Levels One Window Features Display Window(s)

Property Features

Building Features Kitchen Facilities Multi- Tenant Private Restrooms Pole Sign Electric 220 Volts Inclusions Building Land Leasable Area 6096 Lease Considered YN Yes Listing Terms Lease Lease Option Possession Close Of Escrow Property Sub Type Retail Property Sub Type Additional Retail Investment Special Purpose Security Features Security Lights Sewer Public Sewer Tax Annual Amount 67956 Tenant Pays Common Area Maintenance Electricity Gas Heat Insurance Janitorial Service Taxes Trash Collection Water Utilities Electricity Available Natural Gas Available Water Source Public Zoning URB / COMM Zoning Description URB / COMM

Listing information © 2026 Cedar Rapids Area Association of REALTORS® Multiple Listing Service.
Listing provided courtesy of Jim Zachar of Realty87: 319-378-8760.
© 2026 Cedar Rapids Area Association of REALTORS® Multiple Listing Service, Inc. All rights reserved. IDX information is provided exclusively for consumers' personal, non-commercial use and may not be used for any purpose other than to identify prospective properties consumers may be interested in purchasing. Information is deemed reliable but is not guaranteed accurate by the MLS or Rosekrans Stines Team | RE/MAX Concepts. Data last updated: 2026-04-18T14:43:22.39.
 
https://bt-photos.global.ssl.fastly.net/cedarrapids/1280_boomver_1_2602049-2.jpg https://bt-photos.global.ssl.fastly.net/cedarrapids/1280_boomver_1_2602049-2.jpg https://bt-photos.global.ssl.fastly.net/cedarrapids/1280_boomver_1_2602049-2.jpg
Logo
Rosekrans Stines Team | RE/MAX Concepts
5235 Buffalo Ridge Dr
Cedar Rapids IA, 52411